「書斎付きの2LDKが欲しい」
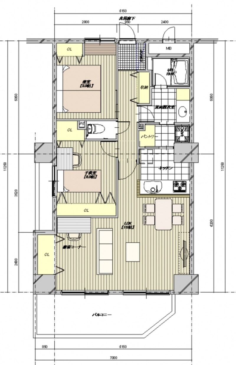
ソリューションの一例を紹介しよう。想定顧客は、夫婦2人に子どもがひとり。「収納をできるだけ豊富に。キッチンはオープンなタイプを希望」(妻)「寝室とは別に書斎が欲しい」(夫)仲介担当は、まず3LDKの売り情報からめぼしい間取りをピックアップするのではないだろうか。しかし、リフォームの専門チームが近くにいれば、提案の幅は格段に広がる。例えば、下の図面をご覧いただこう。2LDKで、しかも妻の希望に合致しないクローズドタイプのキッチンである。だが、書斎自体はそれほど広いスペースを要しないのであれば、3LDKにこだわる必要もなく、さらにはリフォーム予算に2つのバリエーションを持たせる提案ができるとするならば、検討顧客にとって、これほど有難いことはない。
主婦目線の収納、水周り。家具のレイアウトも添えて。
さて、「三井の住まいモール」の提供は以下の二案。Aプランはリビングの一画に書斎コーナーを設けるアイデア。居室は大きく変えないものの、水周りは家事動線を考え回遊型に。キッチンも対面カウンターで開放的なレイアウトに変更した。予算は600万円である。Bプランではリビングの収納スペースを使って書斎室を設ける。窓もあって最適な広さのプライベート空間に仕上がりそうだ。主寝室には特大のウォークインクローゼットを。キッチンカウンターも幅広でさらに開放的なDKになりそうだ。こちらの予算は1,000万円。
「三井の住まいモール」目黒店では事業予算をとくには定めず、各店舗ごとの考え方で収益がまかなえれば良い、との設定でスタート。2号店の計画はまだ未定だそうだが、目黒店の動向次第で、新店舗の拡充が決まるようだ。
【関連記事】
中古マンションのリフォームも同時提案「三井の住まいモール」
【ファイスブックページ】
マンション評価や活動記録など
Copyright(C)2006 MH3 Inc. All rights reserved.










