構造とデザインと居住性
前回記事では、マンションは敷地の環境を考慮してその特徴を明確化し、利点の最大化をはかるための設計がなされていることをタワーマンションの実例をもって解説した。「虎ノ門タワーズレジデンス」は「チェーンドチューブ構法」という、独自の構造技術を開発したという点で、最も好適な例のひとつといえる。前回はおもに構造と外観デザインの関係について記述したが、今回は同じく同タワーマンションを用いて、構造がデザインだけでなく、居住性にも多大な影響を及ぼしている点を説明する。デザインと居住性では、そのどちらに重心が偏っているというわけではなく、あくまでそれらは同列であり、さらにいえば構造さえも先にあるものではなく、すべての最適解を求めるという点ですべてが上位概念であるといえる。
開口部の統一感、居住性を高めるアイデア
右は「虎ノ門タワーズレジデンス」の平面図。25階、26階~34階を並べている。住戸割りとは別にバルコニーがどの面もシンメトリになっていることは前回述べた。この点について追記すると、24階以下(下の画像)をご覧いただくとまた違った形状ながら、デザインの徹底ぶりが伺える。デザインにより注目していただきたいのが、居住性への配慮である。眺望面で不利な下層階は開放性を高めるために間口一杯にバルコニーを設ける。中住戸においても同様に配慮がなされている。さらに、特筆すべきが「A」の部分、特別に約3mもの奥行を取ったバルコニーである。
閉塞感を誘いかねない超高層の居住空間において、奥行き3mの専用利用権スペースは文字で追う以上にはるかに有効で、かつほとんど例がないアイデアである。ウッドデッキと専有部の床との高さを揃えた実際の空間は、バルコニーというよりもパティオに近いイメージ。
柱のない200平米のペントハウス
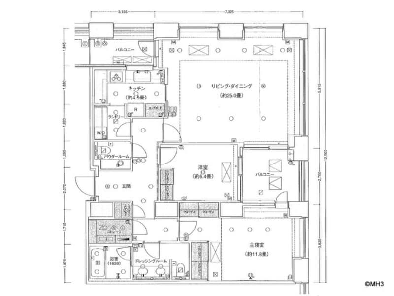
最上階41階はペントハウスらしく大きな専有面積の邸宅が並んでいる。チェーンドチューブ構法の良さが、この特別プランにも有効に生かされた。というのも、200平米という広さながら専有内に柱が1本もない。間取り上の制約が低減されるメリットは、リフォームの度に有効に働くだろう。最後に間取りの細部にも触れておきたい。下のプランは120Aタイプ。奥行き3mのバルコニーを有した角住戸である。
まずは開口部。主寝室では扉を開けた途端、都心の街並みが視界に飛び込む。袖壁もサッシュ枠もなく、大きなハイサッシュのピクチャウィンドウをそのままインテリアとして享受できる。相当の迫力だろう。一転、LDと向き合う側には必要最低限の開口(扉)を設けている。洋室は特大のバルコニーが開放感を与え、LDでは三連窓のダイナミックな眺めが見どころ。風の通り道やキッチンにも採光に配慮するなど、構造や外観デザインについて再三触れてきたが、じつは専有内に居る人の目線を重視して設計していることがわかる。
収納も効率の劣るウォークインクロゼットではなく、壁面収納が主。かと思えば、機能性だけを重んじるのではなく、玄関などは十分なゆとりを設けている。水回りも作業するスペースをしっかり確保し、動線にも配慮。2トイレにもこだわっている点などはゲストのある時以上に、日々の生活の中でその有難さを実感するレイアウトである。
【関連記事】
タワーマンションの平面図から構造とデザインを読取る
タワーマンションの優れた間取り15選









