国道1号線沿いの車の音はどうなの?
![]() |
| 現地前の国道1号線(平成18年9月撮影)。建物は車道から約23m奥まったところに建てられます |
実用的な設備仕様がもりだくさん
![]() |
| メゾンドール森小路モデルルームキッチン。シンクは水はね音の少ない静音タイプのジャンボシンク。IHクッキングヒーターの配線もしてあるのでガスコンロから切り替えもスムーズ |
■全体
フルフラットフロア/24時間全室換気機能/シックハウス対策/
■LD
床暖房/サッシローラー付アーム
■キッチン
静音シンク/IHクッキングヒーター(配線実装)/ジャンボシンク/浄水器付ハンドシャワー混合水栓/スライドキャビネット/3ツ口コンロ
■水回り
浴室暖房乾燥機(カワック24)/温水洗浄暖房便座/三面鏡(裏にドライヤースペース)
■玄関・バルコニー
シューズボックス/オートライト/スロップシンク/バルコニー防水コンセント/ダブルロック/ディンプルキー/カラーモニター付セキュリティインターホン
■共用施設
宅配ボックス
■セキュリティ
24時間セキュリティシステム(アウル24・アイルス)/防犯カメラ/窓の防犯センサー/バール・サムターン回し対策/大阪府防犯モデルマンション登録予定/ルーバー面格子/駐車場出入口にリングシャッター
■その他
オートロックリモコン/全室消灯スイッチ/サッシ指詰め防止ストッパー/光ファイバー高速インターネット
![]() |
![]() |
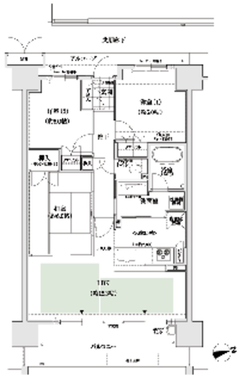
| 【Aタイプ間取図】専有面積81.32m²。浴室は大きな窓のビューバスでキッチンにも勝手口を設置。3面バルコニーで通風・採光良好な角住戸4LDK。 ※間取りをクリックすると拡大します |
【Bタイプ間取図】専有面積70.32m²。開口部ら面して広がるワイドな横長リビング。全居室約5帖以上を確保した人気プラン。 ※間取りをクリックすると拡大します。 ※間取図の縮尺率は左右の間取図で異なります。 |
【物件データ】2006年9月25日現在
| 交通 | (1)地下鉄谷町線 「千林大宮」駅より徒歩3分、(2)京阪本線 「森小路」駅より徒歩4分 |
| 所在地 | 大阪市旭区森小路1丁目30番-1(地番) |
| 価格(第1期) | 2,388万円~3,438万円 |
| 専有面積 | 65.20m²~81.32m² |
| 間取り | 3LDK・4LDK |
| 総戸数 | 52戸 |
| 構造・規模 | 鉄筋コンクリート造、地上14階建 |
| モデルルーム | 「メゾンドール森小路」マンションギャラリーにて公開中 問い合わせ0120-052-668 11時~19時(水曜・第二火曜定休) |
| 販売情報 | 平成18年10月第1期分譲開始予定 |
| 入居予定 | 2007年9月下旬 |
| 売主 | クボタメゾン株式会社 |
| webサイト | メゾンドール森小路ホームページ |
| 駐車場カバー率 | 総戸数に対し約51% 27台 |
| 駐車場代(月額) | 14,000円~19,500円 |
| ペット | 飼育可(規制あり) |
| 管理費・修繕積立金(月額) | 管理費:5,410円~6,750円、修繕積立金: 2,740円~3,420円 |
| 用途地域 | 商業地域 |
| 借地条件の概要 | ■権利の種類/借地借家法第22条による定期借地権(地上権) ■借地の期間/57年(西暦2006年6月16日から西暦2063年6月15日まで)借地権満了後に更地返還。建物の買取請求、契約更新および改築等による期間延長不可。 ■借地の権利金/2,143,000円~2,673,000円(販売価格に含まれます) ■地代(月額)/12,010円~14,980円 ■建物取壊し及び原状回復費用積立金(月額) /2,610円~3,250円 ■地代保証金(一括)/36,030円~44,940円 ■私道負担/なし ■借地権の譲渡・転貸/可。地主の承諾不要。 ■敷地権設定登記/可。 |










