![]() |
| 仕事・子育て・家事と忙しい、共働き夫婦にオススメの間取りとは? |
これからはリフォームしながら長く住む時代。将来のリフォームプランを頭に描きつつマンション選びをするようになるでしょう。そんなときの参考にしてください。
今回は同じ間取り図を元にしながら、次の3つの家族構成に向いた間取りにアレンジしました。
■小さなお子さんのいる家族向け
■共働きで忙しいご夫婦向け
■DINKS向け
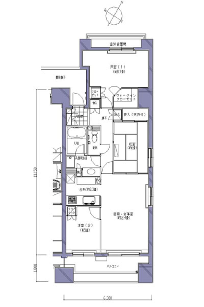
図1:基本となるマンションの間取り図
![]() |
| 【図1】基本プラン。今回はこの間取りをベースにそれぞれのプランを考えます。 |
それでは家族構成別間取り例を見てまいりましょう。
小さなお子さんがいる場合はキッチンの配置に注目!
小さいお子さんのいる家族ではキッチンの配置に気をつけましょう。キッチンには家庭内事故の原因がたくさんあります。そこで【図2】をご覧ください。Aの部分のように、キッチン入り口が狭くなったタイプの間取りを選ぶと良いでしょう。入り口付近にチャイルドゲートをつければお子さんがキッチンに入る心配がなくなります。![]() |
| 【図2】小さいお子さんがいる家族向けプラン。子どもの安全を考えるとキッチンはこのような形が理想的。 |
【関連記事】子どもを脅す住まいの3つの危険エリア
このような対面式キッチンでは家事をしながら居間にいるお子さんの様子を見ることができます(図中B)。さらに居間と三枚扉でつながった子ども部屋を準備します(図中C)。お子さんが小さいうちは夫婦寝室で添い寝するので、普段は三枚扉をあけて居間の延長した空間として使用すれば良いのです。
お子さんが成長して1人で寝られるようになったら扉を閉めて個室として使います。子ども室への動線はこの間取り例のように、居間を通過してアプローチするタイプが人気です。子どもの気配を感じられる工夫といえるでしょう。
それでは次のページで共働きで忙しい夫婦に向いた間取り、DINKSに向いた間取りを見てみましょう。










