間違いだらけのキッチン選び!
Vol.2 システムキッチンを一言で説明できない訳?
こんな中1985年には、キッチンのISO(国際標準規格)が、従来のEINBAU KUCHE(ビルトインキッチン)のDIN(ドイツ工業規格)を、より互換性の高いキッチンシステムへと高度化するための改正をおこないました。


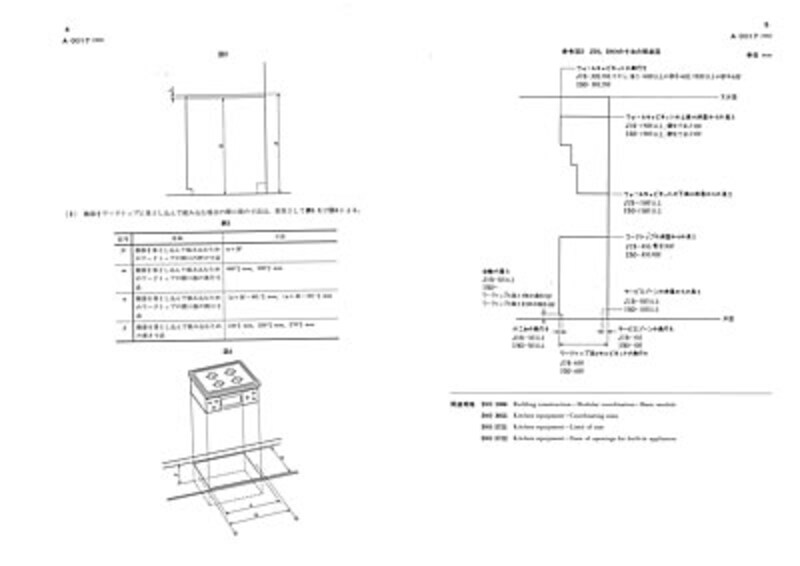
ISO3055-1985 kitchen equipment-Coodinating sizes



JIS A0017-1992 住宅用キッチン設備の寸法 sizes
すなわち、ワークトップ高さの8.5N(850mm)や4.5N巾(450mm巾)のキャビネットや機器寸法は、当面使っても良い寸法というように格下げとなってしまったのです。日本ではまだ45センチ幅のキャビネットや食器洗い機が主流ですが、ISO規格でもJIS規格でも準規格の扱いとなった訳です。
(C)Mar.2010 Copyright HIDEWO KURODA KITCHEN SYSTEM LABO.INC.






