大隈会館から早大通りをしばらく行って曲がるとそのマンションはあります。RC地上3階地下1階建てのそのマンションの名は『SPIRAL』。
いかにも都心型のデザイナーズマンションだなと思えるコンクリートの 外観とガラスブロックを組み入れた開口部が特徴です。
エントランスを抜けるとそのまま中庭に出てしまうこのマンションは、
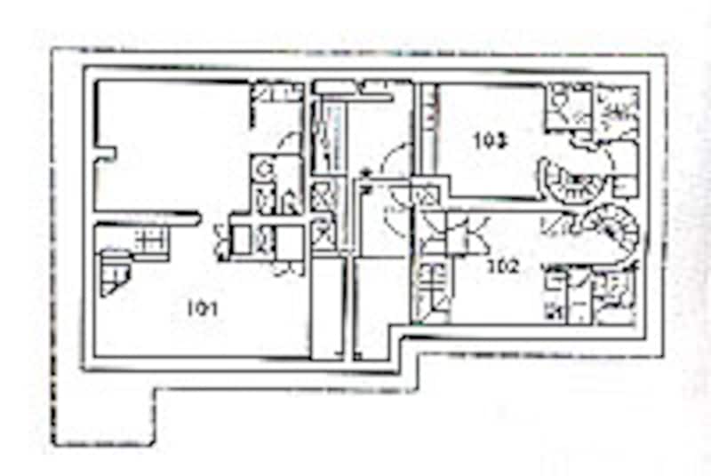
中庭に階段部が設けられ、ここから2階3階へと上がっていく形になっている。つまり中庭に面して2つの棟が建っていることになります。ここは内部でありかつまた外部でもあるわけですね。それにしても階段はグレーチングになっているので下が透けて見える。スカートの女性は外出時にはちょっと気をつけなければいけないかもしれません。中庭を隔てて向かい合う2棟には8タイプの部屋が9戸積み重ねられています。中でも特徴的なのは、メゾネットタイプの101号室と、ロフトとアールのついた天井を持つ301号室、そして極めつけは半地下と2階を交差する形で分け合った102号103号の両室でしょう。
![]() | ![]() |
| ★1階平面図 | ★地下1階平面図 |
設計にあたったワークショップの木下道郎さんは言います。
「とくに102号室と103号室は、上下階がズレたデザインになってるんですね。
これは法規制を逃れるための苦肉の策なんですが、それぞれの部屋に相手側の階段部が出っ張ってきていて、それを降りると相手側の部屋のちょうど真下に位置する地下室に出ることになります。ひとつの空間を2者で分け合っている形で、僕はこれを『クロスメゾネット』と呼んでます」


![[YODAアーキテクツ]のプロフィールと住宅建築作品](https://imgcp.aacdn.jp/img-a/156/auto/aa/gm/article/4/7/5/9/9/6/1532745799/topimg_middle.jpeg)
![リゾート感覚で暮らす[鎮守の森に浮かぶ借景の家]](https://imgcp.aacdn.jp/img-a/156/auto/aa/gm/article/4/7/4/5/9/7/1532665383/topimg_middle.jpeg)
![家カフェのある改修[東村山のリノベーション]](https://imgcp.aacdn.jp/img-a/156/auto/aa/gm/article/4/7/4/5/9/6/201806290031/topimg_middle.jpg)
![丘の上の眺めの良い木造の家[日野の住宅]](https://imgcp.aacdn.jp/img-a/156/auto/aa/gm/article/4/7/4/5/9/5/201805290645/topimg_middle.jpg)
![大窓と屋上で内と外を繋げた小住宅[屋上のある家]](https://imgcp.aacdn.jp/img-a/156/auto/aa/gm/article/4/7/4/5/9/4/201805271922/topimg_middle.jpg)
![吹抜けの下で料理を楽しむ[鎌倉長谷の家]](https://imgcp.aacdn.jp/img-a/156/auto/aa/gm/article/4/7/2/7/2/1/201804252146/topimg_middle.jpg)
![大黒柱と差鴨居のスキップフロア[井の頭公園の家]](https://imgcp.aacdn.jp/img-a/156/auto/aa/gm/article/4/7/2/7/1/9/201803291924/topimg_middle.jpg)