特徴ある玄関や、家事動線のよさが定番の人気に
今回は、Instagramの投稿から「いいね!」の数をピックアップ。2024年上半期に1~9位となった展示場について、高評価のポイントや見どころを営業推進部の河内美紗(カワウチミサ)がご紹介します。
2023年下半期のランキングはこちら >>
河内「全体の印象としては、床だけでなく、天井や壁にも豊かな木質感がある展示場が、住友林業らしさとして好評をいただいているようです。工夫されたデザインの玄関や、水廻りの家事動線のよさなども定番の人気です。
Instagramでは、ルームツアーのリール動画も投稿しています。お住まいから遠い展示場でも、入り口から入って中を歩き回るような疑似体験ができますので、ぜひリール動画でもお好みの家を探してみてください」
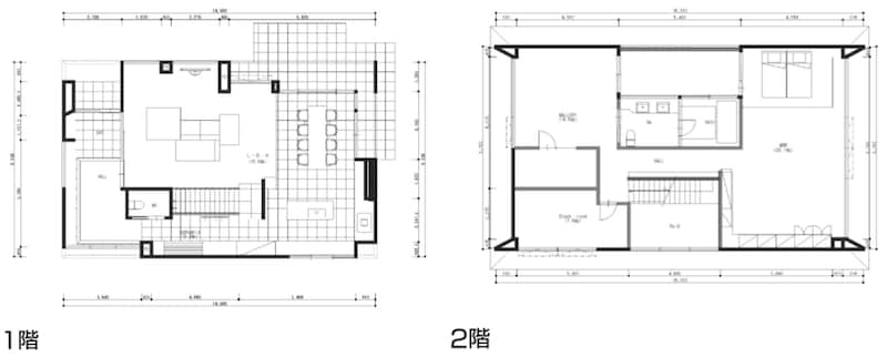
第1位:国産ナラ材の床など、木の風合いが魅力(鹿児島県・鹿児島展示場)
2023年9月にオープンした鹿児島展示場は、床材に国産ナラ材の無垢材を使用。壁や天井も上質な木の風合いで、木に囲まれた暮らしをイメージさせる展示場です。河内「国産ナラ材の床は住友林業のオリジナルで、人気の高い部材となっています。リビングでは、床や天井の木材が張られている方向が、揃って窓に向かっているところがポイントです。窓の奥に視線が行きやすく、空間の広がりを感じられる演出になっています。
LDKがL字型の配置になっているのも特徴で、どこにいても大きな窓が目に入り、爽やかで開放感があります。キッチンの裏側には、洗面脱衣室とランドリースペースを設けました。家事動線を工夫しており、使い勝手がいいのもお勧めです」
その他、2階には家族が思い思いにくつろげるマルチルームを配置。落ち着いたカラーでまとめられた、ホテルライクな寝室なども紹介しています。
(鹿児島展示場)
第2位:本物の植栽と、上質な木材に包まれた心地よさ(広島県・吉島展示場)
第2位となった吉島展示場は、やさしい木のぬくもりでホッとする家がテーマになっています。
河内「2階の階段を上がってすぐのファミリーラウンジが特徴的で、本物の植栽を取り入れ、室内で自然の緑を楽しむことができます。正面と天井の窓からたっぷり陽が差し込んで、北側にあっても十分に明るいスペースです。床には人気の国産ナラ材を使用しています。
寝室の隣にはテレワークスペースを設け、その向こうに『ヌック』と呼ばれる小さなくつろぎ空間を設置しました。仕事でしっかり集中、休憩でのんびりなど、家族が自由に場所を選び、リラックスして過ごしていただける演出がふんだんに施されています」
1階には南に面した明るいLDKがあり、家事のしやすい動線を実現。国産ナラ材をはじめ、オニグルミなどオリジナルの床材を適所に配置し、それぞれの風合いを楽しむことができます。
(吉島展示場)
第3位:落ち着きがあり美しいチーク材が印象的(茨城県・鹿島展示場)
第3位は、落ち着いたトーンの木材が使われている展示場です。共働きのご家庭など忙しい方をサポートできるよう、家事動線も考えられています。
河内「こちらは、Instagramで玄関のシーンが評判になりました。床と天井にはやや赤みのあるシックな印象のチーク材が張られ、美しい空間となっています。リビングなどにもチーク材が使われて全体的に高級感があり、大人がくつろげるイメージです。
リビングは天井までの吹き抜けになっており、大きな窓から自然光が降り注ぎます。奥にあるキッチンの裏側は、洗濯機や室内干しのバー、アイロン台、洗濯物の収納などを備えたランドリースペースに。テラスにもそのまま続いているので、外干しもすぐにできるムダのない設計です」
キッチンはダイニングと横並びに配置されているため、配膳がしやすく家事時短が実現します。ダイニングにはスタディコーナーも設けられ、家族が好きな場所で過ごすことができます。
(鹿島展示場)
第4位:森のコテージを思わせる、こだわり抜いた設計(大阪府・箕面第二展示場)
第4位に選ばれた展示場は、以前もランクインした人気の絶えない場所です。独創的な外観で、ここを自分の目で見たい!と遠方からお越しいただくケースも多くなっています。
河内「何と言っても、この切妻屋根の斬新な外観が魅力です。住まいに個性やユニークさを求める方を想定して、住友林業の設計担当がこだわり、森の中のコテージにいるような家をつくりました。2階寝室の吹き抜けから見える木組みの木質感と、大開口部の眺めは圧巻です。
実際に見学いただく際は、社有林を持つ住友林業ならではの仕掛けがあちこちにあるのでどうぞお見逃しなく。製材前の木を壁面に並べて意匠にするなど、日本の木の美しさを実感していただけます。」
ギャラリーのような玄関、1階の大空間のリビング、階段下を利用したおしゃれなペットスペース、そしてサウナなど、見どころ満載のシーンは投稿やリール動画でもご紹介しています。
(箕面第二展示場)
<関連リンク>
公式インスタグラムの人気投稿をまとめたインスタフォトブックはこちら
住友林業の戸建注文住宅公式アカウント│Instagram
住友林業の住宅展示場一覧はこちら
<関連記事>
家づくりの参考に! 住友林業のInstagram展示場投稿人気ベスト8(2023年下半期)



















