「パークハウス」の高い品質
良いマンションの条件として、まず第一に「立地」を挙げなければならない。その「立地」は唯一無二のものであり、他に代わるものは無いからである。しかしどんなに良い「立地」であっても、それに見合う「商品性の高さ」が伴わなければその価値は半減してしまうだろう。
三菱地所が展開する「パークハウス」は、その品質の高さには定評があるブランドだ。記憶に新しい耐震偽装の問題が起こる前から「チェックアイズ」という独自の厳しい基準を設けていたことからも、その志しと商品の質の高さが想像できよう。
「パークハウス小石川」でもそのノウハウは十分に発揮されている。
例えば、小規模なマンションにも関わらず大きなキャノピーや重厚感のある御影石張りの門柱を配したエントエランスなどは、由緒正しき立地の系譜を意識し、都心の邸宅としての価値を高めようという配慮が感じられる。
![]() |
| エントランス完成予想CG(※計画図を基に描きおこしたもので、実際とは異なります。雨樋、エアコン室外機、給湯器等一部再現されていない設備機器等がございます。また植栽は特定の季節、ご入居時の状態を想定して描かれたものではありません。予めご了承ください。) |
![]() |
| エントランスホール完成予想CG(※計画図を基に描きおこしたもので、実際とは異なります。) |
また安心・安全そして高級感を重視したプランニングとして「内廊下設計」が挙げられる。いわゆる“億ション”に採用されることの多いもので、一般的な開放廊下と違い外部から覗かれる心配もなく、都市生活に不可欠の高いセキュリティとプライバシーを確保できる。もちろんカーペット敷きのため靴音が響く心配も少なく、冷暖房が完備されているのもメリットである。
プランニングの特徴
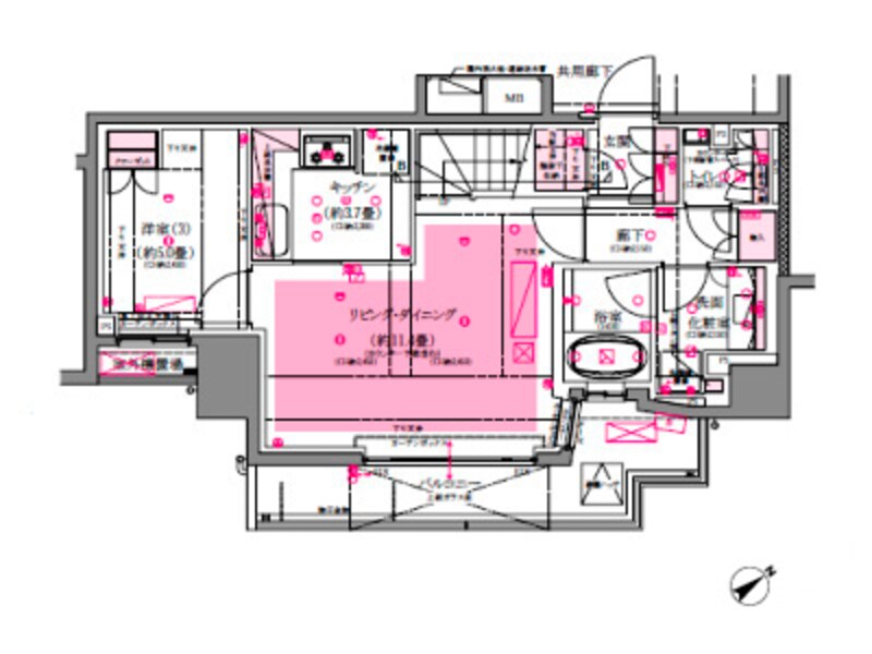
専有部分に関しても「パークハウス」ブランドの質の高さが感じられる。「パークハウス小石川」は1LDK~4LDKまで様々なタイプバリエーションがあるが、最上階のメゾネットプランで確認してみよう。
![]() |
| 80-Cタイプ(メゾネット3LDK)間取図・8階部分(下階) |
![]() |
| 80-Cタイプ(メゾネット3LDK)間取図・9階部分(上階) |
80Cという8-9階のメゾネットタイプ3LDKの一番の特徴は、主開口部の間口の広さである。11m超のワイドスパンプランで、横長のリビングの多くの部分が開口部に面しているため非常に明るく開放的な室内空間になっている。
さらに浴室もバルコニー側に配されているので、マンションには珍しく窓のある浴室が実現している。
また上階には2洋室が配されているが、3面開口部で2つのルーフバルコニーがある贅沢なプランである。そしてこのメゾネットプランの最大のメリットと言えるのは、上階の2洋室は完全にプライベートの空間として独立しており、いわゆるP・P(パブリックとプライベート)の分離が図りやすいことである。
もちろん室内の仕様や設備についても十分なレベルのものが揃っている。
モデルルームでは、都心文京区の立地特性の魅力に適ったクォリティの高さを体感できるはずだ。
![]() |
| リビング・ダイニングルーム(2009年12月70-Dタイプモデルルームを撮影したもで家具・調度品等は価格に含まれません) |
![]() |
| リビング・ダイニングルーム(2009年12月70-Dタイプモデルルームを撮影したもで家具・調度品等は価格に含まれません) |
提供:三菱地所株式会社












